ДОМ DUPLEX (проект№6)

Дополнительная информация

Характеристики дома

Площадь застройки 222,66 м2
Этажность дома 2 этажа
Площадь здания по внутреннему периметру(без летних помещений) 279,04 м2
Площадь помещений одного блока 141,69 м2
Строительный обьем 1160,20 м3
ЦЕНА 2 519 589 грн
Комплектация дома и используемые материалы
Наименование материала Единица измерения Количество Сумма
Панели
Панели стеновые трехслойные (МА-2021-К06-К3.В1) шт. 19 -
Панели стеновые трехслойные (МА-2021-К06-К3.В2) шт. 19 -
Панели стеновые ЗБК шт. 4 -
Панели парапетные(МА-2020-К06-К3.В3) шт. 12 -
Детали к панелям парапета кг 8,4 -
Панели стеновые трехслойные Б-НС-6 шт. 1 -
СУММА ЗА ПАНЕЛИ -
Фундамент и лестница
Блоки фундаментные ФБС шт. 98 -
Арматурные детали шт. 1401 -
Закладные изделия МН502 шт. 58 -
СУММА ЗА ФУНДАМЕНТ -
Перекрытие
Балки Терива БПЖ шт. 62 -
Блок перекрытия ОПБ60.25.20 - В12,5 Ж3 F25 шт. 1348 -
ЗБК- Балконные плиты (МА-2021-К01-К3.В1) шт. 2 -
ЗБК-Навес (МА-2021-К01-К3.В1) шт. 2 -
Объемный арматурный каркас для перекрытия шт. 6 -
СУММА ЗА ПЕРЕКРЫТИЕ -
Наименование материала
Панели "Единица измерения"
Панели стеновые трехслойные (МА-2021-К06-К3.В1)
Панели стеновые трехслойные (МА-2021-К06-К3.В2)
Панели стеновые ЗБК
Панели парапетные(МА-2020-К06-К3.В3)
Детали к панелям парапета
Панели стеновые трехслойные Б-НС-6
СУММА ЗА ПАНЕЛИ
Панели "Количество"
Панели стеновые трехслойные (МА-2021-К06-К3.В1)
Панели стеновые трехслойные (МА-2021-К06-К3.В2)
Панели стеновые ЗБК
Панели парапетные(МА-2020-К06-К3.В3)
Детали к панелям парапета
Панели стеновые трехслойные Б-НС-6
СУММА ЗА ПАНЕЛИ
Панели "Сумма"
Панели стеновые трехслойные (МА-2021-К06-К3.В1)
Панели стеновые трехслойные (МА-2021-К06-К3.В2)
Панели стеновые ЗБК
Панели парапетные(МА-2020-К06-К3.В3)
Детали к панелям парапета
Панели стеновые трехслойные Б-НС-6
СУММА ЗА ПАНЕЛИ
Фундамент и лестница "Единица измерения"
Блоки фундаментные ФБС
Арматурные детали
Закладные изделия МН502
СУММА ЗА ФУНДАМЕНТ
Фундамент и лестница "Количество"
Блоки фундаментные ФБС
Арматурные детали
Закладные изделия МН502
СУММА ЗА ФУНДАМЕНТ
Фундамент и лестница "Сумма"
Блоки фундаментные ФБС
Арматурные детали
Закладные изделия МН502
СУММА ЗА ФУНДАМЕНТ
Перекрытие "Единица измерения"
Балки Терива БПЖ
Блок перекрытия ОПБ60.25.20 - В12,5 Ж3 F25
ЗБК- Балконные плиты (МА-2021-К01-К3.В1)
ЗБК-Навес (МА-2021-К01-К3.В1)
Объемный арматурный каркас для перекрытия
СУММА ЗА ПЕРЕКРЫТИЕ
Перекрытие "Количество"
Балки Терива БПЖ
Блок перекрытия ОПБ60.25.20 - В12,5 Ж3 F25
ЗБК- Балконные плиты (МА-2021-К01-К3.В1)
ЗБК-Навес (МА-2021-К01-К3.В1)
Объемный арматурный каркас для перекрытия
СУММА ЗА ПЕРЕКРЫТИЕ
Перекрытие "Сумма"
Балки Терива БПЖ
Блок перекрытия ОПБ60.25.20 - В12,5 Ж3 F25
ЗБК- Балконные плиты (МА-2021-К01-К3.В1)
ЗБК-Навес (МА-2021-К01-К3.В1)
Объемный арматурный каркас для перекрытия
СУММА ЗА ПЕРЕКРЫТИЕ
ОДНОЭТАЖНЫЙ ДОМ SIMPLE

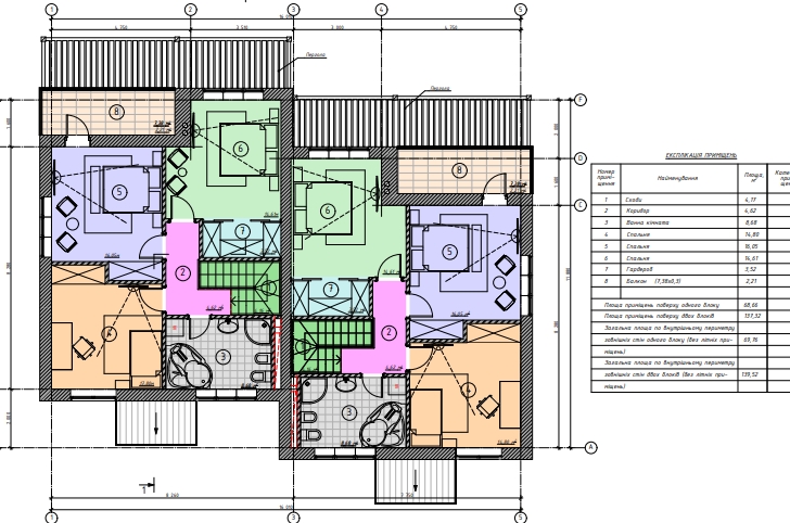
Формико Префаб предлагает Вашему вниманию комфортабельный Дуплекс, рассчитанный на проживание двух семей. Каждая из частей дома имеет 3 спальни, 2 ванные комнаты, гостиную, кухню со столовой, котельную, холл с лестницей. Каждая часть дома оборудована полностью отдельными входом, крыльцом и балконами. Дом прекрасно подходит как для проживания двух разных семей, так и для комфортной жизни одной большой семьи. Расчёт произведен для варианта комплектации дома "Премиум" с  использованием минераловатного утеплителя плит Технофас Эффект(200мм). Жилье идеально подходит для проживания 2-4 человек(каждая половина дома). Мы берем на себя все заботы по производству, доставке и монтажу здания. В результате за 8-12 недель Вы получите дом, полностью готовый к ремонту и облагораживанию участка. Чтобы заказать строительство, воспользуйтесь кнопкой "Хочу такой же дом", либо заполните форму обратной связи внизу страницы. Вы также можете связаться с нами используя контактные данные, указанные на странице Контакты.

Дополнительные услуги

Шеф-монтаж
Компания Formico Prefab предоставляет услуги обучения монтажу домов из трехслойных панелей для оптовых заказчиков.
Корректировка проекта
Возможна корректировка изначального проекта в соответствии с Вашими пожеланиями. Стоимость строительства будет варьироваться в зависимости от сложности внесенных правок.
Помощь с выбором участка
После подписания договора на постройку дома от Formico, эксперты компании помогут Вам выбрать подходящий по геологическим параметрам участок для застройки.

Этапы сотрудничества

  1. Согласование условий
    Для начала мы согласуем условия работы - сроки, стоимость и проект.
  2. Подписание договора
    Подписание договора и передача аванса.
  3. Производство материалов
    Наш завод БЗЖБК произведет панели, перекрытия и прочие необходимые для постройки дома элементы.
  4. Доставка материалов
    Мы доставим готовый домокомплект на Ваш участок.
  5. Монтаж здания
    Произведем монтаж дома в соответствии с утвержденным проектом в течение 1-2 недель.
  6. Сдача проекта и полный расчёт
    Сдача проекта и оплата остатка суммы, подписание документов о приеме-передаче.
У вас остались вопросы?
Заполните форму, мы свяжемся с вами в ближайшее время и проконсультируем по любому вопросу

    + Прикрепить файл